ShareSave
Guide Price£2,200,000

Fabulous family home - Clewer, between Wedmore and Cheddar

Land size
15 acres
Bedrooms
7
Bathrooms
5

Key Features

  • Stunning, extended farmhouse with spacious accommodation
  • 15 acres of land - pasture, wooded hillside, mature gardens
  • Outdoor pool
  • Equestrian facilities - 3 Stables, hay barns, tack room, sand turnout and arena
  • 2 bedroom, detatched cottage
  • Large, detatched studio barn with kiln
  • Located in a small hamlet between Wedmore and Cheddar at the end of a quiet 'no-through-road'
  • Very private, mature setting in a stunning rural location
  • Superb sunsets
  • Over 6000 sq ft of accommodation

Description

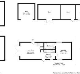
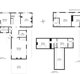
The house has an entrance hall, sitting room, drawing room, study, pool room, kitchen/dining/family room, 2 cloakrooms, boiler room, utility and a boot room. Upstairs are 7 bedrooms, a cot room, family bathroom, 4 ensuites and a large loft storeroom.

The Cottage has an open plan sitting room/dining room with kitchen, 2 bedrooms – one on the ground floor with an ensuite bathroom and one upstairs with a separate bathroom off the attractive galleried landing.

Outside a private drive leads to a turning circle and carport, enclosed gardens and grounds of over 1.5 acres surround the property, an outdoor pool, pool hut with shower room, orchards, detached 2 bedroom Cottage, separate studio barn (electric kiln included) with workshop, stable yard with separate entrance, 3 stables, hay barn, tack room, hay shed, manège, turn out arena, approx. 15 acres of pasture and woodland.

Viewing highly recommended to appreciate the privacy and charm.

For more information, please contact the Wells Office on .

Location

Situated down a no through road in a very private location with far reaching views over its own land and adjoining farmland. This fabulous house sits centrally within its mature garden with views to the Mendips in the west – perfect for catching the sunset over Crook Peak.

About the area

The property is located in a private setting on the edge of a friendly, rural hamlet between Cheddar and Wedmore.

The Saxon village of Wedmore is a delightful and extremely active centre and in many ways is an archetype of an English village. There are historic buildings including the medieval church next to an old coaching inn, a general store/newsagent, post office, butchers, chemist, various other interesting shops, plus pubs, restaurants and tea rooms. There is a wide range of cultural and sporting clubs and societies. Swimming pools at both Cheddar & Wells; Sailing & Windsurfing Clubs at Cheddar Reservoir; the Badgworth Equestrian Centre: Wedmore 18 Hole Golf Course; Floodlit Astroturf Tennis Courts; Indoor and Outdoor Bowling Green;, Football and Cricket clubs.

 

Nearby cities and towns and communications

The Cathedral City of Wells is approximately 7 miles away and also provides a good range of business, recreational and shopping facilities. Shopping centres are available at Taunton, Bath and Bristol (each approximately 25 miles away). Communications in the area are good with access to the M5 (J22 - 10 minutes) connecting to M4 (J16). A local train service from Highbridge (7 miles) links with the intercity train services at Taunton and Bristol Temple Meads to London Paddington taking approximately 11/2 hours. Castle Cary, a mainline station is about 20 miles whilst Bristol International Airport is 15 miles away.

Schools

There are excellent state and independent schools in the area including Wedmore First School, Hugh Sexeys Middle School, Kings of Wessex Upper School, Wells Cathedral School, Sidcot, Millfield and the Taunton schools.

 

IMPORTANT NOTICE

Roderick Thomas, their clients and any joint agents state that these details are for general guidance only and accuracy cannot be guaranteed. They do not constitute any part of any contract. All measurements are approximate and floor plans are to give a general indication only and are not measured accurate drawings. No guarantees are given with regard to planning permission or fitness for purpose. No apparatus, equipment, fixture or fitting has been tested. Items shown in photographs are not necessarily included. Purchasers must satisfy themselves on all matters by inspection or otherwise.

 

VIEWINGS

Interested parties are advised to check availability and current situation prior to travelling to see any property.

Property details

Tenure
Freehold
Council Tax Band
F
Date Posted
2026-03-05

Energy Performance Certificate

Energy Efficiency Rating

Very energy efficient - lower running costs
CurrentPotential
(92+)A
(81-91)B
(69-80)C
(55-68)D
(39-54)E
(21-38)F
(1-20)G
53 E
74 C

Based on UK Energy Performance Certificate standards (EU Directive 2002/91/EC)

Utilities & Restrictions

Utilities

Electricity
Mains
Water
Mains
Heating
Oil Heating
Broadband
Ask Agent
Sewerage
Septic Tank / Private

Rights & Restrictions

Public Rights of Way
Ask Agent
Private Rights of Way
Ask Agent
Listed Property
Ask Agent
Restrictions
Ask Agent

Property Features

Accessibility
Ask Agent
Parking
Driveway
Garden
Enclosed Garden

Map Location

Market Value Analysis

Based on properties with houses in South West England (10+ acres).

This Property£146,667 / acre
Regional Average (10+ acres)£12,718 / acre
View full market data

Important notice: Information, maps and tags on this page are supplied by the advertising agent or generated automatically. LandSale has not verified them. Relying on these details is at your own risk, always carry out independent checks before committing to a purchase.

Contact Roderick Thomas, Wells

1 Priory Road Wells BA5 1SR

View agent profile