Laund Lane, Haslingden, Rossendale, BB4
- Land size
- 34.33 acres
Key Features
- what3words///blazers.widgets.dreading
- includes 34.33 acres
- Method of sale - By Informal Tender before midday Wednesday 29th April 2026
- Other lots available
- * Planning Permssion *
Description
Further Houses Farm is conveniently situated for Accrington train station, Manchester via the Bury bypass and the motorway network via the Accrington by pass. From the A56 roundabout at Rising Bridge take the access onto the A680 and after one third mile take the left turn onto Clough End Road. Travel up Clough End Road for 500 yards and take a left turn onto Laund Lane at the end of which there will be a sale board at the gateway entrance to Further Houses Farm.
The market towns of Haslingden, Accrington, Blackburn and Burnley are all in close proximity with good education facilities, hospitals, supermarkets, shopping centres, recreation parks, country walks and restaurants.
Further Houses Farm is offered for sale by informal tender in three convenient lots or as a whole with bungalow, farmbuildings with planning permission for residential development and in all almost 60 acres of sound meadow and grazing land. Planning permission was granted by Rossendale Borough Council on 20th March 2025 for the conversion of a stone barn into a dwelling, the extension of the converted coach house into a large dwelling and the demolition of a redundant stone barn under application no 2024/0053.
Description
Further Houses Farm is conveniently situated for Accrington train station, Manchester via the Bury bypass and the motorway network via the Accrington by pass. From the A56 roundabout at Rising Bridge take the access onto the A680 and after one third mile take the left turn onto Clough End Road. Travel up Clough End Road for 500 yards and take a left turn onto Laund Lane at the end of which there will be a sale board at the gateway entrance to Further Houses Farm.
The market towns of Haslingden, Accrington, Blackburn and Burnley are all in close proximity with good education facilities, hospitals, supermarkets, shopping centres, recreation parks, country walks and restaurants.
Further Houses Farm is offered for sale by informal tender in three convenient lots or as a whole with bungalow, farmbuildings with planning permission for residential development and in all almost 60 acres of sound meadow and grazing land. Planning permission was granted by Rossendale Bo...
Method of Sale
The property is offered for sale in three lots or any combination of lots by informal tender with offers in accordance with the tender form provided to be submitted to the office of the selling agents on or before midday Wednesday 29th April 2026.
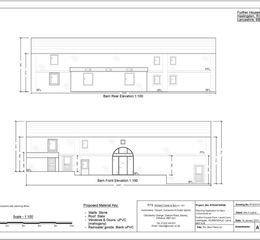
Four Bay Barn and surrounding land in all about 34.33 acres (Lot 3)
The Four Bay Barn 50' x 24'
is constructed of stone walls under a dual pitch stone slate roof with arched doorway, front leanto former pig stye and rear leanto store.
Outside
Pastureland and rough grazing land with a westerly aspect.
Planning Permission
provides for ground floor lounge / dining area, kitchen, conservatory, snug / playroom, utility and shower room and first floor with two ensuite bedrooms, three further bedrooms, family bathroom and private study in all providing 4,500 sq ft of living accommodation over two floors.
Rights and Reservations
1. The routes of public footpaths are shown on the plan.
2. The overhead electrcity line and pylon are shown on the plan.
3. If the property is sold in separate lots the maintenance of the access route will be according to user.
4. The bungalow has a spring water supply and will have rights to enter onto the land with the barn ownershhip for repair and maintenance of the supply. The barn and former coach house owners will be expected to sink water boreholes respectively in their own land.
5. The owners of the barn and the former Coach House will be expected to arrange for their own electricity supplies.
6. If the property is sold in separate lots the owners of the four bay barn with the benefit of planning permission will be responsible to demolish the two bay barn in accordance with condition 5 of the planning permission thereby allowing a variation of the access route to the former Coach House if it proves desirable.
Map Location
Property details
- Tenure
- Freehold
- Council Tax Band
- Ask Agent
- Date Posted
- 2026-03-15
Market Value Analysis
Based on properties with houses in North West England (25+ acres).
Utilities & Restrictions
Utilities
- Electricity
- Ask Agent
- Water
- Ask Agent
- Heating
- Ask Agent
- Broadband
- Ask Agent
- Sewerage
- Ask Agent
Rights & Restrictions
- Public Rights of Way
- Ask Agent
- Private Rights of Way
- Ask Agent
- Listed Property
- Ask Agent
- Restrictions
- Ask Agent
Property Features
- Accessibility
- Ask Agent
- Parking
- Parking Available
- Garden
- Garden
Important notice: Information, maps and tags on this page are supplied by the advertising agent or generated automatically. LandSale has not verified them. Relying on these details is at your own risk, always carry out independent checks before committing to a purchase.
LandSale full disclaimer
Marketing information only - not formal particulars. The details on this website are provided for general guidance and do not constitute an offer or contract. Neither LandSale nor the advertising estate/land agent accepts responsibility for any inaccuracy.
1. Source of information
- Agent-supplied content: Core description, asking price, tenure, measurements, photographs and planning history are uploaded by the appointed agent, who remains solely responsible for their accuracy.
- Automated tags & categorisation: Property type, land-use class, acreage bands and similar labels may be applied by machine-learning models. They are intended as a helpful guide only and may not reflect the property's legal status or permitted use.
- Third-party & enriched data layers: Maps, boundary outlines, planning designations, soil reports, broadband coverage and other environmental or location-based insights are licensed from external suppliers. Such data are supplied “as is", may be incomplete or out of date and are subject to change without notice.
2. Verification required
Prospective purchasers must verify critical matters, including but not limited to planning permission, title boundaries, public rights of way, environmental constraints, acreage, services, access and VAT status, through their own inspections, specialist surveys, legal advisers and the selling agent before relying on the information or entering into any contract.
3. No warranty or liability
LandSale gives no warranty, express or implied, as to the accuracy, completeness or fitness for any particular purpose of the information displayed. LandSale shall not be liable for any loss, damage, cost or expense arising directly or indirectly from any use of or reliance on such information, save where liability may not be excluded by law.
4. Updates & feedback
If you believe any detail on this listing is inaccurate, please let us know. We will investigate and, where appropriate, update the listing or notify the agent.
© LandSale | Version 1.2 - January 2026
Listing agent
Richard Turner & Son, Bentham (Nr Lancaster),
Royal Oak Chambers, Main Street, Bentham (Nr Lancaster), LA2 7HF
Contact Richard Turner & Son, Bentham (Nr Lancaster),
Royal Oak Chambers, Main Street, Bentham (Nr Lancaster), LA2 7HF
View agent profile