ShareSave
Guide Price£159,000

Building Plots, Charles Street, Tredegar, Gwent, NP22 4AD

Bedrooms
8

Description

For sale by online, unconditional auction on 01/04/2026 18:10

Guide Price: £159,000+

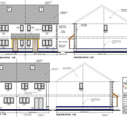
BUILDING PLOTS WITH FULL PLANNING PERMISSION

An exceptional opportunity to acquire a ready-to-build residential development site in the heart of Tredegar, offering full planning permission for the construction of two semi-detached dwellings.

This highly attractive parcel of land presents a turnkey development prospect, with all preparatory requirements already satisfied, enabling an immediate start on site.

Key Features:

- Full Planning Permission Granted for 2 semi-detached residential units

- All Planning Conditions Discharged

- SuDS Approved (Sustainable Drainage Systems consent in place)

- No Section 106 Contributions Payable

- No Community Infrastructure Levy (CIL) Charges

- Development-Ready Site Immediate Commencement Possible

The absence of Section 106 obligations and CIL payments significantly enhances the scheme's viability and overall profitability. With SuDS approval secured and all planning conditions formally discharged, developers can proceed without delay a rare advantage in today's planning environment.

Situated within an established residential area of Tredegar, the site benefits from strong local demand for quality housing and convenient access to local amenities, schools, and transport links.

This is an ideal opportunity for regional developers, SME builders, or investors seeking a straightforward, low-risk project with planning certainty and excellent potential returns.

**PLEASE NOTE: The current owner may consider a joint venture. Please contact the office to discuss this further.**

Accommodation
Planning consent approved on reference: BG/SAB/25/0024

Tenancy Details
To be sold with vacant possession

Tenure
Tenure is advised as freehold

Applicable Fees Please note: A Buyers Premium will be applicable to all lots sold at auction, this is charged at 1.20 inc. VAT of the final sale price (subject to a minimum of 1,195.00 inc. VAT).

Property details

Tenure
Freehold
Council Tax Band
Ask Agent
Date Posted
2026-03-19

Utilities & Restrictions

Utilities

Electricity
Ask Agent
Water
Ask Agent
Heating
Ask Agent
Broadband
Ask Agent
Sewerage
Ask Agent

Rights & Restrictions

Public Rights of Way
Ask Agent
Private Rights of Way
Ask Agent
Listed Property
Ask Agent
Restrictions
Ask Agent

Property Features

Accessibility
Ask Agent
Parking
Ask Agent
Garden
Ask Agent

Map Location

Important notice: Information, maps and tags on this page are supplied by the advertising agent or generated automatically. LandSale has not verified them. Relying on these details is at your own risk, always carry out independent checks before committing to a purchase.

Contact Sage & Co Auctions, Cwmbran

Lakeside House lakeside Ct Cwmbran NP44 3GA

View agent profile