Coxes Farm Road, Billericay
- Bedrooms
- 3
- Bathrooms
- 2
Key Features
- Parcel of land with planning permission granted for a three-bedroom chalet-style dwelling
- Located in the highly desirable Coxes Farm area of Billericay
- Opportunity to build a bespoke family home
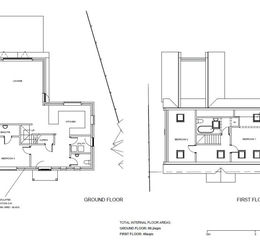
- Plans include spacious living accommodation arranged over two floors
- Open-plan kitchen and living space
- Ground floor bedroom with en-suite
- Quiet semi-rural surroundings over looking fields while remaining close to local amenities
- Convenient access to Billericay High Street, shops, restaurants, and leisure facilities
- Mainline railway station nearby offering direct services to London
- Ideal opportunity for self-builders, investors, or developers in a sought-after location
Description
** Development Opportunity ** Land with Planning Permission for a 3 Bedroom Chalet, Coxes Farm, Billericay **
An excellent opportunity to acquire a parcel of land with granted planning permission for the construction of a well-designed three-bedroom chalet-style dwelling, situated within the highly desirable Coxes Farm area of Billericay.
This attractive plot offers the ideal setting for a bespoke family home in a peaceful semi-rural location while remaining conveniently close to local amenities, schools, and transport links. The approved plans provide for a stylish three-bedroom chalet residence, designed to maximise both living space and natural light, creating a comfortable and modern home environment.
The proposed accommodation includes spacious open-plan living areas, well-proportioned bedrooms, and a flexible layout suited to contemporary family living. The chalet design allows for generous ground floor accommodation complemented by additional bedrooms and bathroom facilities on the upper level.
Coxes Farm is widely regarded as one of the more sought-after locations within Billericay, offering a charming blend of countryside surroundings with easy access to the town centre. Billericay itself provides a range of shops, restaurants, and leisure facilities, along with a mainline railway station offering direct services into London, making it an ideal location for commuters.
This plot represents an exciting opportunity for developers, investors, or private buyers looking to build their own home in a desirable and established residential setting.
Further details regarding the planning consent and site information are available upon request.
Property details
- Tenure
- Freehold
- Council Tax Band
- Ask Agent
- Date Posted
- 2026-03-21
Utilities & Restrictions
Utilities
- Electricity
- Ask Agent
- Water
- Ask Agent
- Heating
- Ask Agent
- Broadband
- Ask Agent
- Sewerage
- Ask Agent
Rights & Restrictions
- Public Rights of Way
- Ask Agent
- Private Rights of Way
- Ask Agent
- Listed Property
- Ask Agent
- Restrictions
- Ask Agent
Property Features
- Accessibility
- Ask Agent
- Parking
- Driveway
- Garden
- Ask Agent
Map Location
Important notice: Information, maps and tags on this page are supplied by the advertising agent or generated automatically. LandSale has not verified them. Relying on these details is at your own risk, always carry out independent checks before committing to a purchase.
LandSale full disclaimer
Marketing information only - not formal particulars. The details on this website are provided for general guidance and do not constitute an offer or contract. Neither LandSale nor the advertising estate/land agent accepts responsibility for any inaccuracy.
1. Source of information
- Agent-supplied content: Core description, asking price, tenure, measurements, photographs and planning history are uploaded by the appointed agent, who remains solely responsible for their accuracy.
- Automated tags & categorisation: Property type, land-use class, acreage bands and similar labels may be applied by machine-learning models. They are intended as a helpful guide only and may not reflect the property's legal status or permitted use.
- Third-party & enriched data layers: Maps, boundary outlines, planning designations, soil reports, broadband coverage and other environmental or location-based insights are licensed from external suppliers. Such data are supplied “as is", may be incomplete or out of date and are subject to change without notice.
2. Verification required
Prospective purchasers must verify critical matters, including but not limited to planning permission, title boundaries, public rights of way, environmental constraints, acreage, services, access and VAT status, through their own inspections, specialist surveys, legal advisers and the selling agent before relying on the information or entering into any contract.
3. No warranty or liability
LandSale gives no warranty, express or implied, as to the accuracy, completeness or fitness for any particular purpose of the information displayed. LandSale shall not be liable for any loss, damage, cost or expense arising directly or indirectly from any use of or reliance on such information, save where liability may not be excluded by law.
4. Updates & feedback
If you believe any detail on this listing is inaccurate, please let us know. We will investigate and, where appropriate, update the listing or notify the agent.
© LandSale | Version 1.2 - January 2026
Listing agent
Cowling & Payne, Wickford
2-6 Runwell Road, Wickford, SS11 7AB