High Street, Cherry Hinton, CB1
- Land size
- 0.28 acres
Key Features
- Development Opportunity
- Planning Permission Granted
- 25/01321/FUL
- Approximately: 0.28 Acre Area
Description
A residential development opportunity situated on High Street in the popular and well connected area of Cherry Hinton, Cambridge.
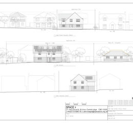
The site currently comprises a detached dwelling set within a generous residential plot with frontage onto High Street. Planning permission has been granted for the demolition of the existing property and the redevelopment of the site to provide a 2.5-storey nine bedroom, nine person large House in Multiple Occupation (Sui Generis) alongside a separate two bedroom dwelling, together with associated works.
The proposed scheme will create a substantial HMO building arranged across two and a half storeys, designed to provide nine individual bedrooms with shared living accommodation and associated facilities. In addition, the development includes the construction of a separate two bedroom residential dwelling positioned within the site, offering independent accommodation.
The proposal also includes associated landscaping, access arrangements and outdoor amenity space, creating a well considered residential scheme within an established neighbourhood setting.
Cherry Hinton is a well regarded suburb located to the east of Cambridge city centre, offering a range of everyday amenities including shops, schooling and recreational facilities. The area benefits from regular bus services along High Street and convenient access to Cambridge city centre, the railway station and the A14, making it a practical location for residents and commuters alike.
The planning permission (Ref: 25/01321/FUL) was approved by Cambridge City Council in February 2026.
EPC Rating: D
Map Location
Property details
- Tenure
- Freehold
- Council Tax Band
- E
- Date Posted
- 2026-03-21
Utilities & Restrictions
Utilities
- Electricity
- Ask Agent
- Water
- Ask Agent
- Heating
- Ask Agent
- Broadband
- Ask Agent
- Sewerage
- Ask Agent
Rights & Restrictions
- Public Rights of Way
- Ask Agent
- Private Rights of Way
- Ask Agent
- Listed Property
- Ask Agent
- Restrictions
- Ask Agent
Property Features
- Accessibility
- Ask Agent
- Parking
- Ask Agent
- Garden
- Private Garden
Important notice: Information, maps and tags on this page are supplied by the advertising agent or generated automatically. LandSale has not verified them. Relying on these details is at your own risk, always carry out independent checks before committing to a purchase.
LandSale full disclaimer
Marketing information only - not formal particulars. The details on this website are provided for general guidance and do not constitute an offer or contract. Neither LandSale nor the advertising estate/land agent accepts responsibility for any inaccuracy.
1. Source of information
- Agent-supplied content: Core description, asking price, tenure, measurements, photographs and planning history are uploaded by the appointed agent, who remains solely responsible for their accuracy.
- Automated tags & categorisation: Property type, land-use class, acreage bands and similar labels may be applied by machine-learning models. They are intended as a helpful guide only and may not reflect the property's legal status or permitted use.
- Third-party & enriched data layers: Maps, boundary outlines, planning designations, soil reports, broadband coverage and other environmental or location-based insights are licensed from external suppliers. Such data are supplied “as is", may be incomplete or out of date and are subject to change without notice.
2. Verification required
Prospective purchasers must verify critical matters, including but not limited to planning permission, title boundaries, public rights of way, environmental constraints, acreage, services, access and VAT status, through their own inspections, specialist surveys, legal advisers and the selling agent before relying on the information or entering into any contract.
3. No warranty or liability
LandSale gives no warranty, express or implied, as to the accuracy, completeness or fitness for any particular purpose of the information displayed. LandSale shall not be liable for any loss, damage, cost or expense arising directly or indirectly from any use of or reliance on such information, save where liability may not be excluded by law.
4. Updates & feedback
If you believe any detail on this listing is inaccurate, please let us know. We will investigate and, where appropriate, update the listing or notify the agent.
© LandSale | Version 1.2 - January 2026
Listing agent
Hockeys, Cambridge
10 Mill Road, Cambridge, CB1 2AD