Trevemper, Trevemper, Newquay, Cornwall, TR8 4QD
Key Features
- Planning GRANTED - PA24/02470
- Priced to Sell
- Immediate ‘exchange of contracts’ available
Description
For sale via secure sale online bidding - terms and conditions apply.
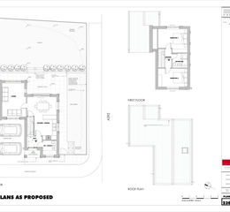
We are delighted to bring to the market the opportunity to acquire this plot with planning permission granted for a two bedroom detached cottage, planning reference number PA24/02470.
This is a fantastic opportunity for the next purchaser and we encourage registering your interest early to avoid disappointment.
Please note the entrance is shared access and parking is designated to the allocated spaces.
Please note we have not inspected this property.
Location
The plot is located in Trevemper, on the southern outskirts of Newquay, just 1.5 miles from the town centre.
Site details
Planning permission granted for a new dwelling, two bedroom detached cottage.
Tenure
Freehold, subject to title split.
Additional Information
For further information please contact our office directly on , or alternatively via email on . With regards to viewing subject property, this is to be done strictly by appointment.
Auctioneers Additional Comments
Pattinson Auction are referred to as The Auctioneer. This auction lot is being sold by either conditional (Modern) or unconditional (Traditional) auction terms and overseen by The Auctioneer. The method of auction sale and the applicable terms and conditions are found on the lot page of this property on The Auctioneers website. The property is available to view strictly by appointment only via any Marketing Agent or The Auctioneer. Please be aware that any enquiry, bid or viewing of the subject property will require your details to be shared between any marketing agent and The Auctioneer so that matters can be dealt with effectively. The property is being sold via a transparent online auction. To submit a bid, all bidders must adhere to a verification of identity process in line with Anti Money Laundering procedures. Bids can be submitted at any time and from anywhere.
Auctioneers Additional Comments
The advertised price is commonly referred to as a Starting Bid or Guide Price and is accompanied by a Reserve Price. The Reserve Price is confidential to the seller and The Auctioneer and will typically be within a range above or below 10% of the Guide Price or Starting Bid. These prices are subject to change. An auction can be closed at any time, with The Auctioneer permitting the property (the lot) to be sold prior to the end of the auction. A Legal Pack associated with this property is available to view upon request and contains details relevant to the legal documentation, enabling all interested parties to make an informed decision prior to bidding. The Legal Pack will also outline the buyers obligations and sellers commitments. It is strongly advised that you seek the counsel of a solicitor prior to proceeding with any property and/or Land Title purchase.
Auctioneers Additional Comments
In order to secure the property and ensure commitment from the seller, upon exchange of contracts the successful bidder will be expected to pay a non-refundable deposit equivalent to 5% of the purchase price. The deposit will form part of the purchase price. A non-refundable reservation fee of up to 6% inc VAT (subject to a minimum fee which could be up to 7,200 inc VAT) is also payable upon agreement of sale. The Reservation Fee is in addition to the agreed purchase price, and consideration should be given by the purchaser to any Stamp Duty Land Tax liability associated with the overall purchase costs. Both the Marketing Agent and The Auctioneer may consider it necessary or beneficial to pass customer details to third-party service suppliers, from whom a referral fee may be received. There is no requirement or obligation to use any recommended suppliers or services.
Map Location
Property details
- Tenure
- Freehold
- Council Tax Band
- Ask Agent
- Date Posted
- 2026-03-24
Utilities & Restrictions
Utilities
- Electricity
- Ask Agent
- Water
- Ask Agent
- Heating
- Ask Agent
- Broadband
- Ask Agent
- Sewerage
- Ask Agent
Rights & Restrictions
- Public Rights of Way
- Ask Agent
- Private Rights of Way
- Ask Agent
- Listed Property
- Ask Agent
- Restrictions
- Ask Agent
Property Features
- Accessibility
- Ask Agent
- Parking
- Residents Parking
- Garden
- Ask Agent
Important notice: Information, maps and tags on this page are supplied by the advertising agent or generated automatically. LandSale has not verified them. Relying on these details is at your own risk, always carry out independent checks before committing to a purchase.
LandSale full disclaimer
Marketing information only - not formal particulars. The details on this website are provided for general guidance and do not constitute an offer or contract. Neither LandSale nor the advertising estate/land agent accepts responsibility for any inaccuracy.
1. Source of information
- Agent-supplied content: Core description, asking price, tenure, measurements, photographs and planning history are uploaded by the appointed agent, who remains solely responsible for their accuracy.
- Automated tags & categorisation: Property type, land-use class, acreage bands and similar labels may be applied by machine-learning models. They are intended as a helpful guide only and may not reflect the property's legal status or permitted use.
- Third-party & enriched data layers: Maps, boundary outlines, planning designations, soil reports, broadband coverage and other environmental or location-based insights are licensed from external suppliers. Such data are supplied “as is", may be incomplete or out of date and are subject to change without notice.
2. Verification required
Prospective purchasers must verify critical matters, including but not limited to planning permission, title boundaries, public rights of way, environmental constraints, acreage, services, access and VAT status, through their own inspections, specialist surveys, legal advisers and the selling agent before relying on the information or entering into any contract.
3. No warranty or liability
LandSale gives no warranty, express or implied, as to the accuracy, completeness or fitness for any particular purpose of the information displayed. LandSale shall not be liable for any loss, damage, cost or expense arising directly or indirectly from any use of or reliance on such information, save where liability may not be excluded by law.
4. Updates & feedback
If you believe any detail on this listing is inaccurate, please let us know. We will investigate and, where appropriate, update the listing or notify the agent.
© LandSale | Version 1.2 - January 2026
Listing agent
Pattinsons, Pattinsons Auction- National Auctioneer
Mercantile House Silverlink, Wallsend, NE28 9NY
Contact Pattinsons, Pattinsons Auction- National Auctioneer
Mercantile House Silverlink, Wallsend, NE28 9NY
View agent profile