Herbert Drive, Methwold
Key Features
- Part-completed Residential Development
- Guide Price £400,000 - £450,000
- 2x Three Bedroom Detached Units
- 6x Three Bedroom Semi-Detached Units
- 1x Three Bedroom Terraced Unit
- 2x Two Bedroom Terraced Units
- Norfolk Village Location
Description
Guide Price £400,000 - £450,000. This PART-COMPLETED NEW HOME DEVELOPMENT offers an exciting and unique opportunity to acquire 11 part-built units within a larger residential development in the NORFOLK VILLAGE of Methwold.
Description - Guide Price £400,000 - £450,000.
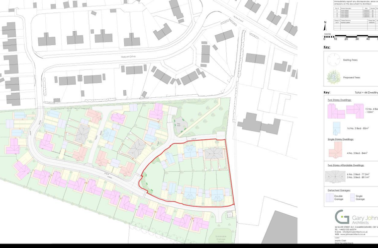
DEVELOPMENT OPPORTUNITY! This part-completed residential development offers an exciting and unique opportunity to acquire 11 part-built units within the Norfolk Village of Methwold, consisting of 2 three bedroom detached units, 6 three bedroom semi-detached units, 1 three bedroom terraced unit and 2 two bedroom terraced units.
The village is located approx 7 miles from Brandon, 15 miles from Thetford and 12 miles from Downham Market which benefits from a train station providing rail links to Ely, Cambridge and London Kings Cross.
Plots 35 and 36 are three bedroom semi-detached units and furthest progressed, with screed laid and an underfloor heating system fitted.
Plots 34 and 40 are both three bedroom units, both part built up to 1st lift scaffold height.
Plot 41 - 44 are two pairs of three bedroom semi-detached units, also part built up to 1st lift scaffold height.
Plots 37 - 39, a terrace of three, are allocated to a Housing Association. 37 and 39 are two bedroom units, whilst plot 38 is a three bedroom unit. These are part built up to 1st lift scaffold.
The main drain crossing the site from plot 14 to the front of plot 36 is installed and live.
Electric and water mains are laid around the perimeter awaiting connection to each plot.
Relevant documents regarding Land South of Herbert Drive Methwold Thetford Norfolk IP26 4PY can be found on the Kings Lynn & West Norfolk planning portal under application no. 15/02125/OM.
Agents Note - The Community Infrastructure Levy (CIL) is unpaid.
Interested parties will need to make their own enquiries with regards to the exact location and suitability of services and their connections.
Plans are provided as an indication of the location of the units included, and not accurate/ exact scale of boundaries.
Molyneux Estate Agents intend to make our particulars as accurate as possible, however measurements and statements are provided as a general guidance, they are not factual and should not be relied upon.
The Buyer is advised to obtain verification of the tenure from their Solicitor. The agent has not reviewed the title documents for this property.
Anti-Money Laundering (Aml) And Identification - We are supervised by HMRC and, as such, have an obligation under anti-money laundering regulations to conduct anti-money laundering checks on all potential buyers and sellers. We have partnered with Coadjute who will securely manage these checks on our behalf.
Once an offer is accepted (subject to contract) Coadjute will send a secure link for you to complete the biometric checks electronically. A non-refundable fee of £27+ VAT per person will apply for these checks, and Coadjute will handle the payment for this service.
These anti-money laundering checks must be completed before we can send a Memorandum of Sale to solicitors to confirm the sale. Please contact the office if you have any questions in relation to this.
Property details
- Tenure
- Freehold
- Council Tax Band
- Ask Agent
- Date Posted
- 2026-03-25
Utilities & Restrictions
Utilities
- Electricity
- Ask Agent
- Water
- Ask Agent
- Heating
- Ask Agent
- Broadband
- Ask Agent
- Sewerage
- Ask Agent
Rights & Restrictions
- Public Rights of Way
- Ask Agent
- Private Rights of Way
- Ask Agent
- Listed Property
- Ask Agent
- Restrictions
- Ask Agent
Property Features
- Accessibility
- Ask Agent
- Parking
- Parking Available
- Garden
- Ask Agent
Map Location
Important notice: Information, maps and tags on this page are supplied by the advertising agent or generated automatically. LandSale has not verified them. Relying on these details is at your own risk, always carry out independent checks before committing to a purchase.
LandSale full disclaimer
Marketing information only - not formal particulars. The details on this website are provided for general guidance and do not constitute an offer or contract. Neither LandSale nor the advertising estate/land agent accepts responsibility for any inaccuracy.
1. Source of information
- Agent-supplied content: Core description, asking price, tenure, measurements, photographs and planning history are uploaded by the appointed agent, who remains solely responsible for their accuracy.
- Automated tags & categorisation: Property type, land-use class, acreage bands and similar labels may be applied by machine-learning models. They are intended as a helpful guide only and may not reflect the property's legal status or permitted use.
- Third-party & enriched data layers: Maps, boundary outlines, planning designations, soil reports, broadband coverage and other environmental or location-based insights are licensed from external suppliers. Such data are supplied “as is", may be incomplete or out of date and are subject to change without notice.
2. Verification required
Prospective purchasers must verify critical matters, including but not limited to planning permission, title boundaries, public rights of way, environmental constraints, acreage, services, access and VAT status, through their own inspections, specialist surveys, legal advisers and the selling agent before relying on the information or entering into any contract.
3. No warranty or liability
LandSale gives no warranty, express or implied, as to the accuracy, completeness or fitness for any particular purpose of the information displayed. LandSale shall not be liable for any loss, damage, cost or expense arising directly or indirectly from any use of or reliance on such information, save where liability may not be excluded by law.
4. Updates & feedback
If you believe any detail on this listing is inaccurate, please let us know. We will investigate and, where appropriate, update the listing or notify the agent.
© LandSale | Version 1.2 - January 2026
Listing agent
Molyneux Estate Agents, Brandon
49a High Street, Brandon, IP27 0AQ