Denmark Street, Diss
- Bedrooms
- 4
- Bathrooms
- 2
Key Features
- Residential building plot in a sought-after area of Diss
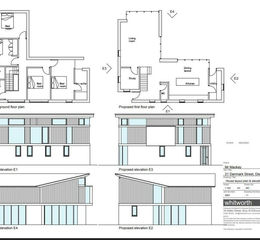
- Detached four-bedroom design (approx. 1,883 sq ft / 175 sqm)
- Full planning permission granted (ref: 2020/2463)
- CIL charge payable by purchaser (£12,294)
- Initial works completed – permission remains active
- Private garden and off-road parking
Description
Residential building plot with full planning permission for a detached four-bedroom house in a well-established area of Diss. The approved design offers around 1,883 sq ft of internal space, parking, and a private garden. Some works have already been carried out, securing the planning permission as live. Accessed via a private driveway, this is an excellent opportunity to create a bespoke family home.
Location
An excellent opportunity to acquire a residential building plot with full planning permission in an established and well-regarded area of Diss. The plot sits in a tucked-away position off Denmark Street and provides the chance to build a detached four-bedroom home with parking and gardens.
Planning consent was granted on 15th February 2021 under reference 2020/2463. The approved plans allow for the removal of a former shed/workshop and the construction of a two-storey dwelling extending to approximately 175 sqm (1,883 sq ft). Some initial site works have been completed, and it is understood this secures the planning permission as extant. The Community Infrastructure Levy (CIL) charge of £12,294 will be payable by the purchaser.
The proposed layout includes generous internal accommodation, ideal for family living, with private garden space and off-road parking.
Access
Access will be via a private driveway from Denmark Street, which will be shared in part with the neighbouring property.
Services
The plot is currently unserviced. It will be the responsibility of the buyer to arrange for the connection of mains services following completion.
How to get there
What3words///adopters.pulsing.sparkle
Viewing
Strictly by appointment with TW Gaze.
Freehold
Anti-Money Laundering, Terrorist Financing and Transfer of funds Regulations 2017.
In line with the regulations, TW Gaze are legally required to carry out AML due diligence checks on all proposed legal purchasers involved in the transaction. A charge of £25.00 + VAT (£30.00 Inc VAT) processing fee is applicable for each purchaser once an acceptable offer is agreed.
Ref:2/19938
Property details
- Tenure
- Freehold
- Council Tax Band
- TBC
- Date Posted
- 2026-03-25
Utilities & Restrictions
Utilities
- Electricity
- Mains
- Water
- Mains
- Heating
- Ask Agent
- Broadband
- Ask Agent
- Sewerage
- Mains
Rights & Restrictions
- Public Rights of Way
- Ask Agent
- Private Rights of Way
- Ask Agent
- Listed Property
- Ask Agent
- Restrictions
- Ask Agent
Property Features
- Accessibility
- Ask Agent
- Parking
- Driveway
- Garden
- Garden
Map Location
Important notice: Information, maps and tags on this page are supplied by the advertising agent or generated automatically. LandSale has not verified them. Relying on these details is at your own risk, always carry out independent checks before committing to a purchase.
LandSale full disclaimer
Marketing information only - not formal particulars. The details on this website are provided for general guidance and do not constitute an offer or contract. Neither LandSale nor the advertising estate/land agent accepts responsibility for any inaccuracy.
1. Source of information
- Agent-supplied content: Core description, asking price, tenure, measurements, photographs and planning history are uploaded by the appointed agent, who remains solely responsible for their accuracy.
- Automated tags & categorisation: Property type, land-use class, acreage bands and similar labels may be applied by machine-learning models. They are intended as a helpful guide only and may not reflect the property's legal status or permitted use.
- Third-party & enriched data layers: Maps, boundary outlines, planning designations, soil reports, broadband coverage and other environmental or location-based insights are licensed from external suppliers. Such data are supplied “as is", may be incomplete or out of date and are subject to change without notice.
2. Verification required
Prospective purchasers must verify critical matters, including but not limited to planning permission, title boundaries, public rights of way, environmental constraints, acreage, services, access and VAT status, through their own inspections, specialist surveys, legal advisers and the selling agent before relying on the information or entering into any contract.
3. No warranty or liability
LandSale gives no warranty, express or implied, as to the accuracy, completeness or fitness for any particular purpose of the information displayed. LandSale shall not be liable for any loss, damage, cost or expense arising directly or indirectly from any use of or reliance on such information, save where liability may not be excluded by law.
4. Updates & feedback
If you believe any detail on this listing is inaccurate, please let us know. We will investigate and, where appropriate, update the listing or notify the agent.
© LandSale | Version 1.2 - January 2026
Listing agent
TW Gaze, Diss
10 Market Hill, Diss, IP22 4WJ