ShareSave
£325,000

High Street, RH7

Bedrooms
4

Key Features

  • Land With Planning Permmisson
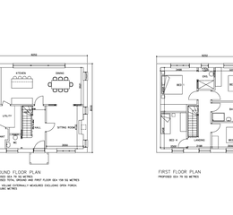
  • Four Bedrooms
  • Open Kitchen/Dining
  • Utility and Downstairs W.C.
  • En-suite and Bathroom
  • Gardens
  • Off Road Parking
  • Village Location

Description

A rare and exciting opportunity to acquire a superb building plot with full planning permission for a stunning detached family home, ideally positioned in the very heart of the highly sought-after village of Dormansland.

Tucked discreetly away just off the High Street, this generous plot enjoys a wonderful sense of privacy and tranquillity, creating the perfect setting for a truly special home. With approved plans already in place, the groundwork has been done for you, allowing a buyer or developer to bring to life an impressive and beautifully designed residence tailored for modern family living.

This is a remarkable chance to build a bespoke "forever home" in a charming village setting, surrounded by countryside yet incredibly well connected.

Dormansland is a thriving and popular village offering a welcoming community atmosphere along with excellent everyday amenities. The village benefits from a mainline railway station providing convenient access into London, making it ideal for commuters. There are also highly regarded primary and secondary schools within close proximity, further enhancing its appeal for families.

Whether you are an individual looking to create your dream home or a developer seeking a fantastic project in a desirable location, this outstanding plot represents an opportunity not to be missed.

planning ref 2025/116

Property details

Tenure
Freehold
Council Tax Band
Ask Agent
Date Posted
2026-03-26

Utilities & Restrictions

Utilities

Electricity
Ask Agent
Water
Ask Agent
Heating
Ask Agent
Broadband
Ask Agent
Sewerage
Ask Agent

Rights & Restrictions

Public Rights of Way
Ask Agent
Private Rights of Way
Ask Agent
Listed Property
Ask Agent
Restrictions
Ask Agent

Property Features

Accessibility
Ask Agent
Parking
Parking Available
Garden
Garden

Map Location

Important notice: Information, maps and tags on this page are supplied by the advertising agent or generated automatically. LandSale has not verified them. Relying on these details is at your own risk, always carry out independent checks before committing to a purchase.

Contact Garnham H Bewley, East Grinstead

73-75 London Road, East Grinstead, West Sussex, RH19 1EQ

View agent profile