Land at The Rear Of, 174 High Street, Gilfach Goch, Porth, Mid Glamorgan, CF39 8SH
Description
FOR SALE BY ONLINE AUCTION - Lot 65 - Building Plot With Approved Planning Permission
ONLINE AUCTION from 14th APRIL - 16th APRIL 2026
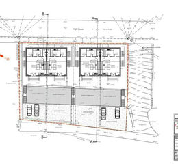
A plot of land with road frontage located in an established residential area. Detailed planning permission was approved for the development of two pairs of semi detached houses (four in total).
(The land also had previous planning (now lapsed) for a detached house with annexe and garage).
Gilfach Goch benefits from local amenities, facilities and offers convenient access to Porth, Tonyrefail, Talbot Green and the M4 motorway.
Planning Permission: Detailed planning permission has been approved for the development of four semi detached town houses.
Planning reference: 23/0738/Ful
(The land also had planning (now lapsed) for a detached house with annexe and garage - Planning ref: 16/1071/10).
Local Authority: Rhondda Cynon Taff. Any enquiries regarding planning should be directed to the local authority.
Any enquiries regarding planning should be directed to the local authority.
Tenure:
Advised Freehold - to be verified by solicitor
Tenancies:
To be sold with vacant possession
Property details
- Tenure
- Freehold
- Council Tax Band
- Ask Agent
- Date Posted
- 2026-03-27
Utilities & Restrictions
Utilities
- Electricity
- Ask Agent
- Water
- Ask Agent
- Heating
- Ask Agent
- Broadband
- Ask Agent
- Sewerage
- Ask Agent
Rights & Restrictions
- Public Rights of Way
- Ask Agent
- Private Rights of Way
- Ask Agent
- Listed Property
- Ask Agent
- Restrictions
- Ask Agent
Property Features
- Accessibility
- Ask Agent
- Parking
- Parking Available
- Garden
- Ask Agent
Map Location
Important notice: Information, maps and tags on this page are supplied by the advertising agent or generated automatically. LandSale has not verified them. Relying on these details is at your own risk, always carry out independent checks before committing to a purchase.
LandSale full disclaimer
Marketing information only - not formal particulars. The details on this website are provided for general guidance and do not constitute an offer or contract. Neither LandSale nor the advertising estate/land agent accepts responsibility for any inaccuracy.
1. Source of information
- Agent-supplied content: Core description, asking price, tenure, measurements, photographs and planning history are uploaded by the appointed agent, who remains solely responsible for their accuracy.
- Automated tags & categorisation: Property type, land-use class, acreage bands and similar labels may be applied by machine-learning models. They are intended as a helpful guide only and may not reflect the property's legal status or permitted use.
- Third-party & enriched data layers: Maps, boundary outlines, planning designations, soil reports, broadband coverage and other environmental or location-based insights are licensed from external suppliers. Such data are supplied “as is", may be incomplete or out of date and are subject to change without notice.
2. Verification required
Prospective purchasers must verify critical matters, including but not limited to planning permission, title boundaries, public rights of way, environmental constraints, acreage, services, access and VAT status, through their own inspections, specialist surveys, legal advisers and the selling agent before relying on the information or entering into any contract.
3. No warranty or liability
LandSale gives no warranty, express or implied, as to the accuracy, completeness or fitness for any particular purpose of the information displayed. LandSale shall not be liable for any loss, damage, cost or expense arising directly or indirectly from any use of or reliance on such information, save where liability may not be excluded by law.
4. Updates & feedback
If you believe any detail on this listing is inaccurate, please let us know. We will investigate and, where appropriate, update the listing or notify the agent.
© LandSale | Version 1.2 - January 2026
Listing agent
Paul Fosh Auctions, Newport
108 Lower Dock Street, Newport, NP20 2AG