ShareSave
Guide Price£15,000

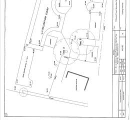
Plots, 25 & 26 Willowturf Court, Bryncethin, Bridgend, Mid Glamorgan, CF32 9PH

Key Features

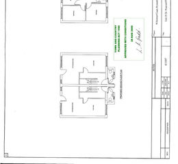
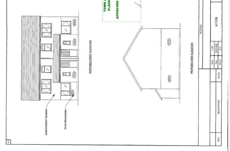
  • Lapsed planning for a pair of semi-detached houses
  • Cul de sac location
  • Established development
  • Rectangular plot

Description

FOR SALE BY ONLINE AUCTION - Lot 81 - Building plot for 2 x semi detached houses
ONLINE AUCTION from 14th APRIL - 16th APRIL 2026

A rectangular shaped building plot with lapsed full planning permission for a pair of 3 bedroom semi-detached houses. The plot is situated in a cul de sac of houses on an established development close to local amenities, schools and shops.

Note The Vendor is also selling a building plot opposite with lapsed planning for two apartments. See Lot no. 80

Bryncethin is a small village in the County Borough of Bridgend, South Wales, located just north of Junction 36 of the M4 Motorway and approximately 3 miles north of the county town of Bridgend. Bryncethin is surrounded by the villages of Aberkenfig, Sarn, Tondu, Ynysawdre, and Abergarw, Brynmenyn the last of which stands at the confluence of the River Garw (Afon Garw) with the larger River Ogmore (Ogmore River).

Lapsed Planning: Planning permission had previously been granted for two 3 bedroom semi-detached houses

Planning ref: P/09/528/Ful (22/7/2008)

Local Authority Bridgend county council

Tenure:
Advised Freehold - to be verified by solicitor

Tenancies:
To be sold with vacant possession

INVESTORS: If you are looking for assistance in tenant find and/or management packages, information on rental income/interest potential we have a Lettings Department that can help you. Please call us or email for invaluable advice.

Property details

Tenure
Freehold
Council Tax Band
Ask Agent
Date Posted
2026-03-27

Utilities & Restrictions

Utilities

Electricity
Ask Agent
Water
Ask Agent
Heating
Ask Agent
Broadband
Ask Agent
Sewerage
Ask Agent

Rights & Restrictions

Public Rights of Way
Ask Agent
Private Rights of Way
Ask Agent
Listed Property
Ask Agent
Restrictions
Ask Agent

Property Features

Accessibility
Ask Agent
Parking
Ask Agent
Garden
Ask Agent

Map Location

Important notice: Information, maps and tags on this page are supplied by the advertising agent or generated automatically. LandSale has not verified them. Relying on these details is at your own risk, always carry out independent checks before committing to a purchase.

Contact Paul Fosh Auctions, Newport

108 Lower Dock Street, Newport, NP20 2AG

View agent profile