Land Between 32/34 Argyll Avenue, Eastham
Key Features
- FOR SALE BY PUBLIC AUCTION : Wednesday, 13 May 2026
- LOT NUMBER : 6
- DEVELOPMENT LAND
- Vacant Land
- Freehold
- *GUIDE PRICE : £100,000 - £120,000
Description
This vacant building plot has Planning Permission for a four bedroomed detached home and is situated in a sought after residential area backing onto playing fields and within easy reach of shops, schools and access to the M53 mid-Wirral Motorway.
Planning Permission was granted in 2020 for a two storey dwelling and a Reserved Matters Notice approved in 2021.
Works were started on the site which we are told implemented this permission. The Planning Application was OUT/20/01334 and plans and drawings can be examined on both the auctioneer's and Council's website.
Accommodation
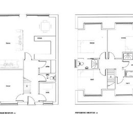
The plans provided show the accommodation to comprise:
Ground Floor
Entrance hall with WC and utility room, lounge, study, living room and kitchen.
First Floor
Landing, four bedrooms, family bathroom with bath and walk in shower, en-suite shower room.
Externally
There are front and rear gardens with provision for on-site parking.
Viewing
The site is open for inspection.
Map Location
Property details
- Tenure
- Freehold
- Council Tax Band
- Ask Agent
- Date Posted
- 2026-03-28
Utilities & Restrictions
Utilities
- Electricity
- Ask Agent
- Water
- Ask Agent
- Heating
- Ask Agent
- Broadband
- Ask Agent
- Sewerage
- Ask Agent
Rights & Restrictions
- Public Rights of Way
- Ask Agent
- Private Rights of Way
- Ask Agent
- Listed Property
- Ask Agent
- Restrictions
- Ask Agent
Property Features
- Accessibility
- Ask Agent
- Parking
- Parking Available
- Garden
- Garden
Important notice: Information, maps and tags on this page are supplied by the advertising agent or generated automatically. LandSale has not verified them. Relying on these details is at your own risk, always carry out independent checks before committing to a purchase.
LandSale full disclaimer
Marketing information only - not formal particulars. The details on this website are provided for general guidance and do not constitute an offer or contract. Neither LandSale nor the advertising estate/land agent accepts responsibility for any inaccuracy.
1. Source of information
- Agent-supplied content: Core description, asking price, tenure, measurements, photographs and planning history are uploaded by the appointed agent, who remains solely responsible for their accuracy.
- Automated tags & categorisation: Property type, land-use class, acreage bands and similar labels may be applied by machine-learning models. They are intended as a helpful guide only and may not reflect the property's legal status or permitted use.
- Third-party & enriched data layers: Maps, boundary outlines, planning designations, soil reports, broadband coverage and other environmental or location-based insights are licensed from external suppliers. Such data are supplied “as is", may be incomplete or out of date and are subject to change without notice.
2. Verification required
Prospective purchasers must verify critical matters, including but not limited to planning permission, title boundaries, public rights of way, environmental constraints, acreage, services, access and VAT status, through their own inspections, specialist surveys, legal advisers and the selling agent before relying on the information or entering into any contract.
3. No warranty or liability
LandSale gives no warranty, express or implied, as to the accuracy, completeness or fitness for any particular purpose of the information displayed. LandSale shall not be liable for any loss, damage, cost or expense arising directly or indirectly from any use of or reliance on such information, save where liability may not be excluded by law.
4. Updates & feedback
If you believe any detail on this listing is inaccurate, please let us know. We will investigate and, where appropriate, update the listing or notify the agent.
© LandSale | Version 1.2 - January 2026
Listing agent
Smith and Sons, Auctions
51-52 Hamilton Square, Birkenhead, CH41 5BN