Frederick Close, Sutton-On-Trent, Newark
Key Features
- Self Build Plot
- Site area 441 m.sq
- Principal Village
Description
Self build plot available in the popular village of Sutton on Trent. Situated in the Charles Church/Persimmon Homes development in the village, overlooking the open space and play area. An opportunity to pursue the planning and create a bespoke home.
Self build plot available in the popular village of Sutton on Trent. Situated in the Charles Church/Persimmon Homes development in the village, overlooking the open space and play area. An opportunity to persue the planning and create a bespoke home.
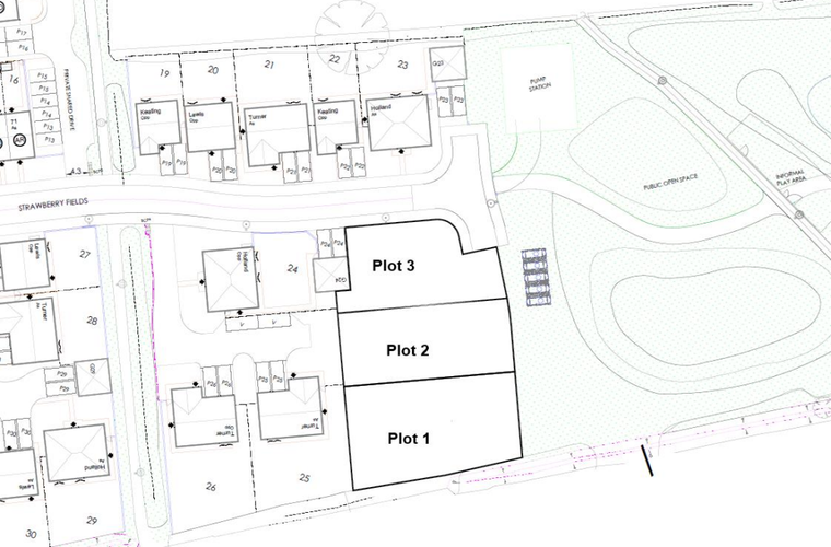
Location - The plots are situated amoungst the Persimmon Homes, Charles Church Strawberry Fields new homes development in the village of Sutton on Trent. They are situated at the edge of this development, adjacent to the open space, footpath and play area.
To the north and west of site are the new homes along Frederick Close and Strawberry Fields, to the east of the site is the open space and to the south is 1990's Barratt housing on Rose Farm Drive.
Just eight miles north of Newark, Sutton on Trent is one of Nottinghamshire’s most desirable villages, offering the perfect balance of countryside living and modern convenience. Situated close to the A1 dual carriageway, it’s ideal for those who want easy access to nearby towns and cities while enjoying a quieter, more relaxed pace of life.
Sutton On Trent Village Lifestyle - Sutton on Trent has a strong sense of community and a great selection of local amenities. The Co-op store makes everyday shopping simple, while the friendly Butchers Brew Café has quickly become a favourite for coffee, brunch, and local catch-ups. The Lord Nelson pub and restaurant provides a welcoming spot for dining and socialising, and the village also boasts two hair salons, a doctor’s surgery, and a well-regarded primary school rated Good by Ofsted. There are good transport links with bus services to local villages and the towns of Retford and Newark.
The larger village of Tuxford is located 4 miles to the north and has a large Co-op supermarket, post office, a range of local shops and public houses. Families will also appreciate being in the catchment area for Tuxford Academy, a popular secondary school just four miles away
Transport Links - The A1 is conveniently placed, just under half a mile from the plots. The village lies approximately 8 miles south of Retford and 7 miles north of Newark. The city of Lincoln is approximately 16 miles distant and the city of Nottingham approximately 28 miles distant. The area is located reasonably centrally in the UK for commuting north to Leeds (64 miles), Worksop (20 miles), Doncaster (35 miles), and south to Grantham (14 miles), Stamford (45 miles) and Peterborough (57 miles). GNER rail services are located both at Retford and Newark with journey times to London of 1 hour 30 minutes and 1 hour 20 minutes respectively.
Town & Country Planning - The site was included in the original planning consent of the wider development, as part of the S.106 agreement for the Parish Council to build a village hall. This was approved under planning reference 14/00161/FULM. A village hall development was approved under subsequent planning application ref: 20/00445/FUL. This permission has not been implimented due to costs.
A pre-application enquiry has been submiited, which is to vary the S106 agreement to ‘unlink’ the Community Facilities Contribution from the Strawberry Fields development for use elsewhere. A letter that was sent to the Council back in January 2024 from the Parish sets out the request. The site would therefore no longer be needed for community use, as this would be distributed elsewhere in the village. The proposed dwellings have been put forward on the basis that the land would no longer be required for a village hall and therefore could be utilised for additional self build dwellings.
The site is situation in a Principal Village, within the Main Open Area. The site is also included in the allocation policy (ST/MU/1) in the emerging local plan, which is yet to be adopted.
Plot 2 - Plot 2 is situated in the middle of the site . The area of the site is approximately 441 m.sq. The site is level and currently grassland.
Indicative plot areas only, subject to on site survey.
Services - Mains water, electricity and drainage are understood to be available. Purchasers should make their own enquiries as to the technical details for connection.
Flooding - The site is located within Flood Zone 2
Conservation Area - The site is located within the Sutton on Trent Conservation Area.
Tenure - The property is freehold.
Viewing - Strictly by appointment with the selling agents.
Map Location
Property details
- Tenure
- Freehold
- Council Tax Band
- Ask Agent
- Date Posted
- 2026-03-29
Utilities & Restrictions
Utilities
- Electricity
- Ask Agent
- Water
- Ask Agent
- Heating
- Ask Agent
- Broadband
- Ask Agent
- Sewerage
- Ask Agent
Rights & Restrictions
- Public Rights of Way
- Ask Agent
- Private Rights of Way
- Ask Agent
- Listed Property
- Ask Agent
- Restrictions
- Ask Agent
Property Features
- Accessibility
- Ask Agent
- Parking
- Parking Available
- Garden
- Ask Agent
Important notice: Information, maps and tags on this page are supplied by the advertising agent or generated automatically. LandSale has not verified them. Relying on these details is at your own risk, always carry out independent checks before committing to a purchase.
LandSale full disclaimer
Marketing information only - not formal particulars. The details on this website are provided for general guidance and do not constitute an offer or contract. Neither LandSale nor the advertising estate/land agent accepts responsibility for any inaccuracy.
1. Source of information
- Agent-supplied content: Core description, asking price, tenure, measurements, photographs and planning history are uploaded by the appointed agent, who remains solely responsible for their accuracy.
- Automated tags & categorisation: Property type, land-use class, acreage bands and similar labels may be applied by machine-learning models. They are intended as a helpful guide only and may not reflect the property's legal status or permitted use.
- Third-party & enriched data layers: Maps, boundary outlines, planning designations, soil reports, broadband coverage and other environmental or location-based insights are licensed from external suppliers. Such data are supplied “as is", may be incomplete or out of date and are subject to change without notice.
2. Verification required
Prospective purchasers must verify critical matters, including but not limited to planning permission, title boundaries, public rights of way, environmental constraints, acreage, services, access and VAT status, through their own inspections, specialist surveys, legal advisers and the selling agent before relying on the information or entering into any contract.
3. No warranty or liability
LandSale gives no warranty, express or implied, as to the accuracy, completeness or fitness for any particular purpose of the information displayed. LandSale shall not be liable for any loss, damage, cost or expense arising directly or indirectly from any use of or reliance on such information, save where liability may not be excluded by law.
4. Updates & feedback
If you believe any detail on this listing is inaccurate, please let us know. We will investigate and, where appropriate, update the listing or notify the agent.
© LandSale | Version 1.2 - January 2026
Listing agent
Richard Watkinson & Partners, Newark
25 Stodman Street Newark NG24 1AT