ShareSave
£79,995

Masonic Lane, Spilsby

Key Features

  • Building Plot in Quiet Residential Location
  • Full Planning Permission for Three Bedroom Detached House
  • Detached Garage & Parking
  • Situation on a No-Through Unadopted Lane
  • Service Connected or Within Close Proximity
  • West Facing Rear Garden with Views over Open Countryside
  • Within Walking Distance of Amenities
  • Sought After Edge of Historic Market Town Location

Description

Willsons are pleased to be able to offer for sale this site with full planning permission situated in the on the outskirts of the village of Hundleby, close to the historic Market Town of Spilsby, in the eastern part of Lincolnshire. The plot is located on a quiet, unadopted, no-through residential lane and offers views over open countryside to the rear.

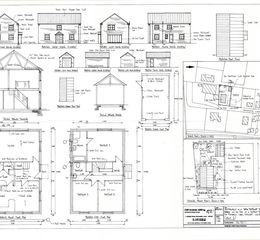
Full planning permission and detailed particulars has been granted for the erection of a three bedroom (one en-suite) detached dwelling and detached single garage.

Full Planning Permission - Full planning permission has been granted by East Lindsey District Council for the “erection of 1no. house with detached single garage.”

The Planning Application Number is S/165/01001/18 with Detailed Particulars lodged under S/165/01373/21. The permission was granted on 25th July 2018 with detailed particulars approved 19th August 2021.

All relevant documents relating to the Planning Application can be viewed on East Lindsey District Council website (

Certificate Of Lawful Development - Confirmation from East Lindsey District Council is held on file under Application Number 02070/25/DPC to confirm that the development has commenced and is available upon request from the Agent.

Location & Access - Situated off Hundleby Road, Spilsby and towards the end of the no-through road, Masonic Lane. The plot can be identified by a "For Sale" board.
What3words///shaky.horizons.suspends

Services - It is understood mains electricity and sewerage are connected to the plot, mains water and gas is available within the roadway, Masonic Lane. Prospective purchaser should make their own enquiries as to the availability of services.

Boundaries - The requirements and boundaries of the the plot are shown on the plans submitted with the planning application. The purchaser should be deemed to have full knowledge of all boundaries and neither the vendor nor the selling agent will be responsible for defining the boundaries nor their ownership.

Plot Dimensions (Approximate) - Boundary to the east (road frontage to Masonic Lane) 14.8m, boundary to the west 15.50m, boundaries to the north and south approximately 25m.

Sporting, Timber & Mineral Rights - Sporting, timber and mineral rights are included in the sale insofar as they are owned, subject to statutory exclusions.

Hm Land Registry - Currently, the development site is not registered with HM Land Registry.

Restrictions, Easements, Wayleaves & Rights Of Way - The land is sold subject to and with the help and benefit of all existing rights, including rights of way whether public or private, light, support, drainage, water and electricity supplies and other rights, easements, and all wayleaves whether referred to or not in these particulars.

Local Authorities - Lincolnshire County Council
Newlands, Lincoln LN1 1YW.

East Lindsey District Council
The Hub, Mareham Road, Horncastle, Lincolnshire, LN9 6PH.

Anglian Water
British Gas
Western Power

Viewing - The site may be viewed at any reasonable time during daylight hours providing a set of particulars are to hand and you have made contact with our Alford Office to leave your contact details. When viewing, interested parties are responsible for their own safety and view at their own risk. The exposed footings for the garage have been cordoned off with stakes and rope for the purposes of health and safety.

Anti-Money Laundering - In accordance with the most recent Anti Money Laundering legislation the purchaser will be required to provide proof of identity and proof of funds to the selling agent once an offer has been submitted and accepted (subject to contract) prior to solicitors being instructed.

Vat - It is understood that the sale does not attract VAT.

Directions - From the A16 Louth to Boston road, on reaching the town of Spilsby, turn onto the A1195 towards the village of Hundleby. After 160m turn left into Masonic Lane. The plot can do found at the farthest end of Masonic Lane, on the right-hand side after 125m.
What3words///shaky.horizons.suspends

Property details

Tenure
Freehold
Council Tax Band
Ask Agent
Date Posted
2026-03-29

Utilities & Restrictions

Utilities

Electricity
Ask Agent
Water
Ask Agent
Heating
Ask Agent
Broadband
Ask Agent
Sewerage
Ask Agent

Rights & Restrictions

Public Rights of Way
Ask Agent
Private Rights of Way
Ask Agent
Listed Property
Ask Agent
Restrictions
Ask Agent

Property Features

Accessibility
Ask Agent
Parking
Parking Available
Garden
Garden

Map Location

Important notice: Information, maps and tags on this page are supplied by the advertising agent or generated automatically. LandSale has not verified them. Relying on these details is at your own risk, always carry out independent checks before committing to a purchase.

Contact Willsons, Alford

124 West Street, Alford, Lincolnshire, LN13 9DR

View agent profile