ShareSave
Guide Price£25,000

Land Posponder Green Park Cawsand, Torpoint, PL10 1NZ

Key Features

  • View more: underthehammer.com

Description

For sale by Under the Hammer online auction on Thursday 30th April 2026. Head over to our website to download the legal pack, register to bid and see more information.

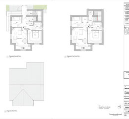
Development opportunity with previous planning permission for 2 x1 Bedroom apartment with study in Torpoint.

A plot of land measuring approximately 364 sq m (3,918 sq ft), offering an attractive opportunity for developers or investors seeking a coastal project. The site benefits from lapsed planning permission for the construction of two flats, presenting clear potential for redevelopment, subject to obtaining all necessary consents.

Cornwall Borough Council previously granted the following planning permission (ref: PA20/00061) on 13th January 2020. 'The construction of 2 x 1.5 bedroom apartments, with associated parking and amenity'. Planning has now lapsed.

The plot forms part of a residential area, conveniently located close to local shops and amenities. The open spaces of The Minnadhu are within easy reach, providing attractive outdoor surroundings. Transport links are available via nearby St Germans railway station, offering connections to surrounding areas.

Here's what to do next

  • Visit - Our website and view the auction terms.
  • View - Book a viewing directly through our website.
  • Register - Get registered prior to the auction opening date.
  • Legal Pack - Download and view the legal pack to find out all the relevant information.
  • Prior Auction Offer - Want it now? Submit a prior auction offer through our website. All offer's go direct to the seller.
  • Bidding - Everything is completed online through the website and the intuitive bidding controls.

If you would like your property to go into our next auction then contact our auction experts on or submit a valuation on our website

Property details

Tenure
Freehold
Council Tax Band
Ask Agent
Date Posted
2026-04-02

Utilities & Restrictions

Utilities

Electricity
Ask Agent
Water
Ask Agent
Heating
Ask Agent
Broadband
Ask Agent
Sewerage
Ask Agent

Rights & Restrictions

Public Rights of Way
Ask Agent
Private Rights of Way
Ask Agent
Listed Property
Ask Agent
Restrictions
Ask Agent

Property Features

Accessibility
Ask Agent
Parking
Parking Available
Garden
Ask Agent

Map Location

Important notice: Information, maps and tags on this page are supplied by the advertising agent or generated automatically. LandSale has not verified them. Relying on these details is at your own risk, always carry out independent checks before committing to a purchase.

Contact Under The Hammer, Covering Nationwide

61 Charlotte Street, St Pauls Square, Birmingham, B3 1PX

View agent profile