Building Plot Longmoor Road, Greatham, Greatham, Liss
Key Features
- Call Now (24/7) or Enquire Online to View.
- Full Planning Permission Granted
- Available as Seperate Plots or One Plot With Permission For Two Houses
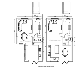
- Planning Approved for Luxury Three Bedroom, 2 Bathroom Homes
- Garages and Parking at Rear
- Located Inside the South Downs National Park
- Surrounded By Green Spaces and Open Countryside
- Self Build Potential
- Exciting Opportunity to Build Inside the National Park
Description
An increasingly rare opportunity to acquire 1 of 2 plots on a prime location with planning permission granted under application SDNP/25/04623/FUL, set within the breathtaking surroundings of the South Downs National Park.
Positioned on Longmoor Road in Greatham near Liss, this exciting parcel of land offers purchasers the chance to create a truly special home in one of the UK's most protected and picturesque landscapes. The application, validated in November 2025, confirms a thoughtfully considered scheme within this highly desirable semi-rural setting.
Both plots present a fantastic self-build or developer opportunity, ideal for those seeking to craft a bespoke home tailored to modern living while embracing the tranquillity of the surrounding countryside. The setting offers a perfect balance—peaceful and private, yet within easy reach of local amenities, transport links, and the vibrant village communities nearby.
The South Downs is renowned for its rolling hills, scenic walking routes, and dark skies, making this an exceptional lifestyle purchase as well as a sound investment. Demand for high-quality homes within the National Park remains consistently strong, further enhancing the long-term appeal of this opportunity.
Map Location
Property details
- Tenure
- Freehold
- Council Tax Band
- TBC
- Date Posted
- 2026-04-08
Utilities & Restrictions
Utilities
- Electricity
- Ask Agent
- Water
- Ask Agent
- Heating
- Ask Agent
- Broadband
- Ask Agent
- Sewerage
- Ask Agent
Rights & Restrictions
- Public Rights of Way
- Ask Agent
- Private Rights of Way
- Ask Agent
- Listed Property
- Ask Agent
- Restrictions
- Ask Agent
Property Features
- Accessibility
- Ask Agent
- Parking
- Parking Available
- Garden
- Ask Agent
Important notice: Information, maps and tags on this page are supplied by the advertising agent or generated automatically. LandSale has not verified them. Relying on these details is at your own risk, always carry out independent checks before committing to a purchase.
LandSale full disclaimer
Marketing information only - not formal particulars. The details on this website are provided for general guidance and do not constitute an offer or contract. Neither LandSale nor the advertising estate/land agent accepts responsibility for any inaccuracy.
1. Source of information
- Agent-supplied content: Core description, asking price, tenure, measurements, photographs and planning history are uploaded by the appointed agent, who remains solely responsible for their accuracy.
- Automated tags & categorisation: Property type, land-use class, acreage bands and similar labels may be applied by machine-learning models. They are intended as a helpful guide only and may not reflect the property's legal status or permitted use.
- Third-party & enriched data layers: Maps, boundary outlines, planning designations, soil reports, broadband coverage and other environmental or location-based insights are licensed from external suppliers. Such data are supplied “as is", may be incomplete or out of date and are subject to change without notice.
2. Verification required
Prospective purchasers must verify critical matters, including but not limited to planning permission, title boundaries, public rights of way, environmental constraints, acreage, services, access and VAT status, through their own inspections, specialist surveys, legal advisers and the selling agent before relying on the information or entering into any contract.
3. No warranty or liability
LandSale gives no warranty, express or implied, as to the accuracy, completeness or fitness for any particular purpose of the information displayed. LandSale shall not be liable for any loss, damage, cost or expense arising directly or indirectly from any use of or reliance on such information, save where liability may not be excluded by law.
4. Updates & feedback
If you believe any detail on this listing is inaccurate, please let us know. We will investigate and, where appropriate, update the listing or notify the agent.
© LandSale | Version 1.2 - January 2026
Listing agent
EweMove, Covering South East England
Cavendish House Littlewood Court, West 26 Industrial Estate, Cleckheaton, BD19 4TE
Contact EweMove, Covering South East England
Cavendish House Littlewood Court, West 26 Industrial Estate, Cleckheaton, BD19 4TE
View agent profile