Red Lion Square, Soham
Key Features
- Land with Planning Permission
- Two Storey House
- Two Bedrooms
- One Bedroom House
- Located Within the Village Centre
- Viewing Highly Recommended
Description
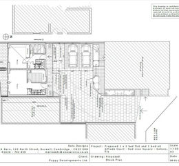
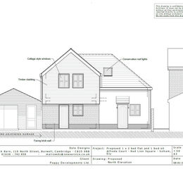
A building plot located in the centre of the popular village of Soham for two properties. The first is for a two storey, two bedroom house and the second attached property is a one bedroom house. The footings were put in early 2015. The planning reference is 13/00060/FUL.
Agents Notes - Planning ref 13/00060/FUL
Footings are in and have been signed off – Work began in 2015.
Location - Soham is a small town located in Cambridgeshire, England, known for its community atmosphere and historical sites. It features various shops, including local bakeries, convenience stores, and independent retailers, alongside amenities like schools, parks, and healthcare facilities. Key distances include approximately 6 miles to Ely City centre, 8 miles to Newmarket town centre, 15 miles to Cambridge city centre and about 25 miles to Bury St Edmunds, making it well-positioned for access to urban conveniences while retaining its rural charm. The town is also well served by public transport, contributing to its connectivity with nearby areas.
Property details
- Tenure
- Freehold
- Council Tax Band
- Ask Agent
- Date Posted
- 2026-04-10
Utilities & Restrictions
Utilities
- Electricity
- Ask Agent
- Water
- Ask Agent
- Heating
- Ask Agent
- Broadband
- Ask Agent
- Sewerage
- Ask Agent
Rights & Restrictions
- Public Rights of Way
- Ask Agent
- Private Rights of Way
- Ask Agent
- Listed Property
- Ask Agent
- Restrictions
- Ask Agent
Property Features
- Accessibility
- Ask Agent
- Parking
- Ask Agent
- Garden
- Ask Agent
Map Location
Important notice: Information, maps and tags on this page are supplied by the advertising agent or generated automatically. LandSale has not verified them. Relying on these details is at your own risk, always carry out independent checks before committing to a purchase.
LandSale full disclaimer
Marketing information only - not formal particulars. The details on this website are provided for general guidance and do not constitute an offer or contract. Neither LandSale nor the advertising estate/land agent accepts responsibility for any inaccuracy.
1. Source of information
- Agent-supplied content: Core description, asking price, tenure, measurements, photographs and planning history are uploaded by the appointed agent, who remains solely responsible for their accuracy.
- Automated tags & categorisation: Property type, land-use class, acreage bands and similar labels may be applied by machine-learning models. They are intended as a helpful guide only and may not reflect the property's legal status or permitted use.
- Third-party & enriched data layers: Maps, boundary outlines, planning designations, soil reports, broadband coverage and other environmental or location-based insights are licensed from external suppliers. Such data are supplied “as is", may be incomplete or out of date and are subject to change without notice.
2. Verification required
Prospective purchasers must verify critical matters, including but not limited to planning permission, title boundaries, public rights of way, environmental constraints, acreage, services, access and VAT status, through their own inspections, specialist surveys, legal advisers and the selling agent before relying on the information or entering into any contract.
3. No warranty or liability
LandSale gives no warranty, express or implied, as to the accuracy, completeness or fitness for any particular purpose of the information displayed. LandSale shall not be liable for any loss, damage, cost or expense arising directly or indirectly from any use of or reliance on such information, save where liability may not be excluded by law.
4. Updates & feedback
If you believe any detail on this listing is inaccurate, please let us know. We will investigate and, where appropriate, update the listing or notify the agent.
© LandSale | Version 1.2 - January 2026
Listing agent
Morris Armitage, Newmarket
Godolphin House 2 The Avenue Newmarket Suffolk CB8 9AA
Contact Morris Armitage, Newmarket
Godolphin House 2 The Avenue Newmarket Suffolk CB8 9AA
View agent profile