Woodhouse Road, Woodhouse, Belton
Key Features
- DEVELOPMENT OPPORTUNITY
- PLANNING PERMISSION FOR FOUR DWELLINGS
- PLANNING APPLICATION NO. PA/2024/1446
- THROUGH NORTH LINCOLNSHIRE COUNCIL
Description
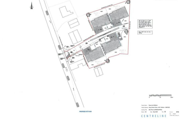
BUILDING DEVELOPMENT
Hunters are delighted to offer this plot of land on a site just on the outskirts of Belton on the A161 which has been granted FULL planning permission to build four dwellings by North Lincolnshire Council planning department under reference PA/2024/1446.
Description - The plot of land is part of the original Grey Green Farm site and is being sold with easy access from the main A161 road leading to the rear of the site with views over countryside as shown on the diagrams attached. Belton is a popular village situated in the Isle of Axholme area of North Lincolnshire and lies on the A161 road giving easy access to the motorway network via the M180. The village has a primary school, village shop with post office, take aways and two public houses.
Further details of the planning applications can be viewed on the North Lincolnshire Council planning portal under references PA/2021/1612 (Outline) and PA/2024/1446 (Full) or please contact the agent for more details.
Property details
- Tenure
- Freehold
- Council Tax Band
- Ask Agent
- Date Posted
- 2026-04-11
Utilities & Restrictions
Utilities
- Electricity
- Ask Agent
- Water
- Ask Agent
- Heating
- Ask Agent
- Broadband
- Ask Agent
- Sewerage
- Ask Agent
Rights & Restrictions
- Public Rights of Way
- Ask Agent
- Private Rights of Way
- Ask Agent
- Listed Property
- Ask Agent
- Restrictions
- Ask Agent
Property Features
- Accessibility
- Ask Agent
- Parking
- Ask Agent
- Garden
- Ask Agent
Map Location
Important notice: Information, maps and tags on this page are supplied by the advertising agent or generated automatically. LandSale has not verified them. Relying on these details is at your own risk, always carry out independent checks before committing to a purchase.
LandSale full disclaimer
Marketing information only - not formal particulars. The details on this website are provided for general guidance and do not constitute an offer or contract. Neither LandSale nor the advertising estate/land agent accepts responsibility for any inaccuracy.
1. Source of information
- Agent-supplied content: Core description, asking price, tenure, measurements, photographs and planning history are uploaded by the appointed agent, who remains solely responsible for their accuracy.
- Automated tags & categorisation: Property type, land-use class, acreage bands and similar labels may be applied by machine-learning models. They are intended as a helpful guide only and may not reflect the property's legal status or permitted use.
- Third-party & enriched data layers: Maps, boundary outlines, planning designations, soil reports, broadband coverage and other environmental or location-based insights are licensed from external suppliers. Such data are supplied “as is", may be incomplete or out of date and are subject to change without notice.
2. Verification required
Prospective purchasers must verify critical matters, including but not limited to planning permission, title boundaries, public rights of way, environmental constraints, acreage, services, access and VAT status, through their own inspections, specialist surveys, legal advisers and the selling agent before relying on the information or entering into any contract.
3. No warranty or liability
LandSale gives no warranty, express or implied, as to the accuracy, completeness or fitness for any particular purpose of the information displayed. LandSale shall not be liable for any loss, damage, cost or expense arising directly or indirectly from any use of or reliance on such information, save where liability may not be excluded by law.
4. Updates & feedback
If you believe any detail on this listing is inaccurate, please let us know. We will investigate and, where appropriate, update the listing or notify the agent.
© LandSale | Version 1.2 - January 2026
Listing agent
Hunters, Bawtry
6 High Street, Bawtry, DN10 6JE