Land At 43-45 Clapton Approach, Wooburn Green, Bucks, HP10
- Bedrooms
- 3
- Bathrooms
- 2
Key Features
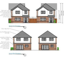
- PIP- planning in principal granted for 2 x 3 bedroom detached houses.
- Each plot can be purchased for £250,000 or both for £500,000.
- Fantastic location near the village of Wooburn Green
- Excellent development opportunity- ideal for a private developer or builder.
- Close to shops and amenities of Wooburn Green.
- Within easy Access of Beaconsfield and Bourne End train Stations.
- Close to the river Wye.
- Please call to book and appointment to view the site.
Description
Building plot with PIP (planning in principal) to build 2 x 3 bedroom detached houses in the sought after village of Wooburn Green. Each Plot is £250,000 and BOTH can be purchassed together for £500,000.
Ideal for a private developer or builder looking for a rare opportunity to build in this prime location.
Both houses have PIP for 3 bedrooms, 2 bath/shower rooms, 2 reception rooms, a downstairs wc and off street parking.
Wooburn Green is a lovely village nestled in between Beaconsfield and Bourne End with easy access to transport, shopping facilities and fantastic eateries.
The area is also well know for schooling with a number of good schools close by.
Please call for an appointment to view.
Please note that the pictures are CGI's of what the houses will look like.
Property details
- Tenure
- Freehold
- Council Tax Band
- TBC
- Date Posted
- 2026-04-12
Utilities & Restrictions
Utilities
- Electricity
- Ask Agent
- Water
- Ask Agent
- Heating
- Ask Agent
- Broadband
- Ask Agent
- Sewerage
- Ask Agent
Rights & Restrictions
- Public Rights of Way
- Ask Agent
- Private Rights of Way
- Ask Agent
- Listed Property
- Ask Agent
- Restrictions
- Ask Agent
Property Features
- Accessibility
- Ask Agent
- Parking
- Parking Available
- Garden
- Ask Agent
Map Location
Important notice: Information, maps and tags on this page are supplied by the advertising agent or generated automatically. LandSale has not verified them. Relying on these details is at your own risk, always carry out independent checks before committing to a purchase.
LandSale full disclaimer
Marketing information only - not formal particulars. The details on this website are provided for general guidance and do not constitute an offer or contract. Neither LandSale nor the advertising estate/land agent accepts responsibility for any inaccuracy.
1. Source of information
- Agent-supplied content: Core description, asking price, tenure, measurements, photographs and planning history are uploaded by the appointed agent, who remains solely responsible for their accuracy.
- Automated tags & categorisation: Property type, land-use class, acreage bands and similar labels may be applied by machine-learning models. They are intended as a helpful guide only and may not reflect the property's legal status or permitted use.
- Third-party & enriched data layers: Maps, boundary outlines, planning designations, soil reports, broadband coverage and other environmental or location-based insights are licensed from external suppliers. Such data are supplied “as is", may be incomplete or out of date and are subject to change without notice.
2. Verification required
Prospective purchasers must verify critical matters, including but not limited to planning permission, title boundaries, public rights of way, environmental constraints, acreage, services, access and VAT status, through their own inspections, specialist surveys, legal advisers and the selling agent before relying on the information or entering into any contract.
3. No warranty or liability
LandSale gives no warranty, express or implied, as to the accuracy, completeness or fitness for any particular purpose of the information displayed. LandSale shall not be liable for any loss, damage, cost or expense arising directly or indirectly from any use of or reliance on such information, save where liability may not be excluded by law.
4. Updates & feedback
If you believe any detail on this listing is inaccurate, please let us know. We will investigate and, where appropriate, update the listing or notify the agent.
© LandSale | Version 1.2 - January 2026
Listing agent
Lowthers Estate Agents, Hertfordshire
165 High Street, Barnet, Hertfordshire EN5 5SU
Contact Lowthers Estate Agents, Hertfordshire
165 High Street, Barnet, Hertfordshire EN5 5SU
View agent profile