Land adjoining Sycharth, Betws Gwerfil Goch, Corwen
Description
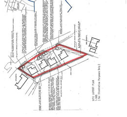
A residential development site for 4 detached dwelling units situated in an elevated position within the Hamlet of Betws Gwerfil Goch. The site benefits outline planning permission and all 4 plots fronts onto a made and adopted public roadway.
FOR SALE BY PRIVATE TREATY
General Remarks -
Situation & Directions - The site is situated within the Hamlet of Betws Gwerfil Goch and enjoys fine south westerly views over the Alwen river and the surrounding countryside.
Travelling along the A5 from Cerrigydrudion in an easterly direction, proceed through Dinmael, on approaching Maerdy turn left just before The Goat Inn signposted Betws Gwerfil Goch 1¾ miles. Follow the road into the village and turn left for the village school and the land will be found on the left just before the school.
Description - Former planning permission was granted under reference 04/2014/1056/PO with the layout for 4 detached dwellings. A further planning consent was approved dated 18/12/207 under reference 04/2017/1007/PS for the increase in the time allowed for the submission of reserve matters. The planning consent and plans etc can viewed on the Denbighshire County Council website or at our Denbigh office using the above reference numbers but omitting /PS.
The proposal offers an ideal opportunity for a young or established small to middle size development company to construct dwellings in a pleasant village location with no added cost of providing an estate roadway.
Viewing Arrangements - Viewing arrangements are at any reasonable time (on foot only) upon production of a copy of the brochure details as a permit.
Tenure & Possession - We are given to understand that the property is Freehold and offered with Vacant Possession upon completion. NB PROSPECTIVE PURCHASERS SHOULD SEEK VERIFICATION VIA THEIR OWN SOLICITORS IN THIS REGARD
Services - It is understood that mains water, electricity and drainage are all available within close proximity however interested parties should make their own enquiries of the relevant utility companies.
Easements, Wayleaves & Rights Of Way - This property is sold subject to all and any rights, including rights of way, whether public or private, light, support, drainage, water and all existing Wayleaves for masts, pylons, stays, cables, wires, drains, water, gas and electricity supplies; and other rights and obligations; quasi-easements and restrictive covenants; and all existing Wayleaves for masts, pylons, stays, cables, wires, drains, water, gas and other pipes whether referred to in these particulars or not. The property is also conveyed subject to all matters revealed in the title accompanying the Contracts of Sale.
Town & Country Planning - The property, notwithstanding any description contained in these particulars, is sold subject to any Development Plan, Tree Preservation Order, Town Planning Scheme, Agreement, Resolution or Notice which may be existing or become effective, and also subject to any Statutory Provision(s) or By-Law(s) without obligation on the part of the Vendor or the Agents to specify them.
Plans & Particulars - These have been carefully prepared and are believed to be correct but interested parties must satisfy themselves as to the correctness of the statements within them. No person in the employment of Clough & Co, the Agents, has any authority to make or give any representation or warranty whatsoever in relation to this property and these particulars do not constitute an offer or contract.
Important - 1. These Particulars have been prepared in all good faith to give a fair overall view of the property; please ask for further information/verification. 2. Nothing in these Particulars shall be deemed to be a statement that the property is in good structural condition or otherwise, nor that any services, appliances, equipment or facilities are in good working order. Purchasers should satisfy themselves on such matters prior to purchase. 3. The photograph(s) depict only certain parts of the property. It should not be assumed that the property remains as displayed in the photograph(s). No assumptions should be made with regard to parts of the property that have not been photographed. Please ask for further information if required. 4. Any area, measurements, aspects or distances referred to are given as a GUIDE ONLY. If such details are fundamental to a purchaser, such purchaser(s) must rely on their own enquiries. 5. Where any reference is made to Planning Permission or potential uses, such information is given by Clough & Co in good faith. Purchasers should, however, make their own enquiries into such matters prior to purchase. 6. Descriptions of the property are subjective and are used in good faith as an opinion and NOT as a statement of fact. Please make further specific enquiries to ensure that our descriptions are likely to match any expectations you may have of the property 7. Following EU/Government Legislation, Clough & Co reserve the right to seek formal confirmation of identity and address details from any prospective purchaser of this property.
Buying Procedure - Upon viewing this property, should you wish to proceed with a proposed purchase, please adhere to the following:- 1. Submit your offer as soon as possible to CLOUGH & CO in order that they can obtain their client's instructions. 2. Should your offer be accepted by our client (subject to contract), then details of your proposed purchase can then be confirmed to the relevant Solicitors.
Selling Procedure - Should you require a no obligation market appraisal of your own property then please contact our Denbigh Office (Tel: ) to make an appointment for our Manager to discuss your requirements.
Property details
- Tenure
- Ask Agent
- Council Tax Band
- Ask Agent
- Date Posted
- 2026-01-29
Utilities & Restrictions
Utilities
- Electricity
- Ask Agent
- Water
- Ask Agent
- Heating
- Ask Agent
- Broadband
- Ask Agent
- Sewerage
- Ask Agent
Rights & Restrictions
- Public Rights of Way
- Ask Agent
- Private Rights of Way
- Ask Agent
- Listed Property
- Ask Agent
- Restrictions
- Ask Agent
Property Features
- Accessibility
- Ask Agent
- Parking
- Ask Agent
- Garden
- Ask Agent
Map Location
Important notice: Information, maps and tags on this page are supplied by the advertising agent or generated automatically. LandSale has not verified them. Relying on these details is at your own risk, always carry out independent checks before committing to a purchase.
LandSale full disclaimer
Marketing information only - not formal particulars. The details on this website are provided for general guidance and do not constitute an offer or contract. Neither LandSale nor the advertising estate/land agent accepts responsibility for any inaccuracy.
1. Source of information
- Agent-supplied content: Core description, asking price, tenure, measurements, photographs and planning history are uploaded by the appointed agent, who remains solely responsible for their accuracy.
- Automated tags & categorisation: Property type, land-use class, acreage bands and similar labels may be applied by machine-learning models. They are intended as a helpful guide only and may not reflect the property's legal status or permitted use.
- Third-party & enriched data layers: Maps, boundary outlines, planning designations, soil reports, broadband coverage and other environmental or location-based insights are licensed from external suppliers. Such data are supplied “as is", may be incomplete or out of date and are subject to change without notice.
2. Verification required
Prospective purchasers must verify critical matters, including but not limited to planning permission, title boundaries, public rights of way, environmental constraints, acreage, services, access and VAT status, through their own inspections, specialist surveys, legal advisers and the selling agent before relying on the information or entering into any contract.
3. No warranty or liability
LandSale gives no warranty, express or implied, as to the accuracy, completeness or fitness for any particular purpose of the information displayed. LandSale shall not be liable for any loss, damage, cost or expense arising directly or indirectly from any use of or reliance on such information, save where liability may not be excluded by law.
4. Updates & feedback
If you believe any detail on this listing is inaccurate, please let us know. We will investigate and, where appropriate, update the listing or notify the agent.
© LandSale | Version 1.2 - January 2026
Listing agent
Clough & Co, Denbigh
Parc Glasdir Denbigh Road Ruthin LL15 1PB