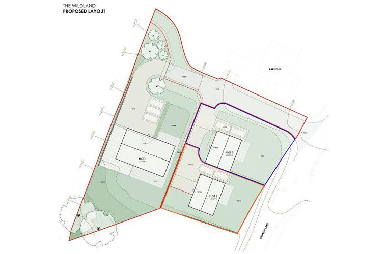
Plot 2, The Wildlands, Church Lane, BS40
- Bedrooms
- 4
- Bathrooms
- 4
Key Features
- Design and Build your own home
- Plot Size: 397 m²
- Permission for a 3 to 4 Bedroom House
- No restriction on use of Architect of Builder
Description
The Wildlands, East Harptree, Somerset - Two Serviced Self-Build Plots with Outline Planning Permission
A rare opportunity to purchase one of two fully serviced building plots in the sought-after village of East Harptree, set within the stunning Mendip Hills Area of Outstanding Natural Beauty (AONB).
Each plot benefits from outline planning permission for a detached 4-bedroom home. Buyers have full flexibility to appoint their own architect and builder, or can be introduced to trusted professionals through CBH to support the full design and build journey.
Plot 2 - Approx. 397m²
The Wildlands offers countryside living with everyday convenience: a community-owned pub, village shop, primary school, nursery, and access to beautiful walking routes are all on the doorstep. Bristol, Bath and Wells are all within 15 miles, and Bristol Airport is just 25 minutes away.
With serviced plots, design freedom, and projected completed values around £850,000, this is an outstanding opportunity for those looking to create a high-quality, bespoke home in one of Somerset's most desirable villages.
Key Features:
- 2 x serviced building plots with outline planning permission
- Planning for detached 4-bed homes
- Use your own architect/builder or access our recommended teams
- Full utility connections at plot boundary
- Prime Mendip Hills AONB location
- Strong local community with amenities in walking distance
- Excellent transport links to Bristol, Bath & Wells
- Potential for Stamp Duty savings on custom build route
For further details, Plot Passports, or to arrange a site visit, please contact our team.
Property details
- Tenure
- Freehold
- Council Tax Band
- Ask Agent
- Date Posted
- 2026-01-29
Utilities & Restrictions
Utilities
- Electricity
- Ask Agent
- Water
- Ask Agent
- Heating
- Solar Heating, Ground Source Heat Pump, Double Glazing, Eco-Friendly System, Central Heating, Air Source Heat Pump, Underfloor Heating
- Broadband
- Ask Agent
- Sewerage
- Ask Agent
Rights & Restrictions
- Public Rights of Way
- Ask Agent
- Private Rights of Way
- Ask Agent
- Listed Property
- Ask Agent
- Restrictions
- Ask Agent
Property Features
- Accessibility
- Wide Doorways, Level Access
- Parking
- Garage, Driveway, Gated Parking, Off-Street Parking, EV Charger, Private Parking
- Garden
- Front Garden, Private Garden, Patio, Enclosed Garden, Rear Garden, Rear Garden
Map Location
Important notice: Information, maps and tags on this page are supplied by the advertising agent or generated automatically. LandSale has not verified them. Relying on these details is at your own risk, always carry out independent checks before committing to a purchase.
LandSale full disclaimer
Marketing information only - not formal particulars. The details on this website are provided for general guidance and do not constitute an offer or contract. Neither LandSale nor the advertising estate/land agent accepts responsibility for any inaccuracy.
1. Source of information
- Agent-supplied content: Core description, asking price, tenure, measurements, photographs and planning history are uploaded by the appointed agent, who remains solely responsible for their accuracy.
- Automated tags & categorisation: Property type, land-use class, acreage bands and similar labels may be applied by machine-learning models. They are intended as a helpful guide only and may not reflect the property's legal status or permitted use.
- Third-party & enriched data layers: Maps, boundary outlines, planning designations, soil reports, broadband coverage and other environmental or location-based insights are licensed from external suppliers. Such data are supplied “as is", may be incomplete or out of date and are subject to change without notice.
2. Verification required
Prospective purchasers must verify critical matters, including but not limited to planning permission, title boundaries, public rights of way, environmental constraints, acreage, services, access and VAT status, through their own inspections, specialist surveys, legal advisers and the selling agent before relying on the information or entering into any contract.
3. No warranty or liability
LandSale gives no warranty, express or implied, as to the accuracy, completeness or fitness for any particular purpose of the information displayed. LandSale shall not be liable for any loss, damage, cost or expense arising directly or indirectly from any use of or reliance on such information, save where liability may not be excluded by law.
4. Updates & feedback
If you believe any detail on this listing is inaccurate, please let us know. We will investigate and, where appropriate, update the listing or notify the agent.
© LandSale | Version 1.2 - January 2026
Listing agent
Custom Build Homes, Covering Nationwide
8 Houstoun Interchange Business Park, Livingston, Eh54 5DW
Contact Custom Build Homes, Covering Nationwide
8 Houstoun Interchange Business Park, Livingston, Eh54 5DW
View agent profile