Abbots Bromley, Rugeley, WS15 3EL
- Land size
- 3 acres
- Bedrooms
- 5
- Bathrooms
- 4
Key Features
- Set within approximately three acres of private grounds including paddock land, mature trees and open rural views.
- Well maintained stables, ideal for horses, ponies or smallholding use.
- Peaceful countryside setting near Blithfield Reservoir with soft, far reaching views across open fields.
- A Grade II listed monument within the grounds that brings depth, heritage and a unique focal point to the garden.
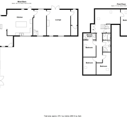
- Five bedroom barn conversion within an exclusive courtyard of barns, reached by a long tree lined driveway.
- Generous lounge with original beams, high ceilings and a warm, timeless atmosphere.
- Principal bedroom suite on the ground floor with its own dressing area and private en suite bathroom.
- Multiple versatile spaces including a snug, upper study room and formal dining room for flexible family living.
- Excellent village location within easy reach of Abbots Bromley’s shops, pubs, sports facilities and walking routes.
- Private and secluded setting that balances countryside tranquillity with convenient access to village life, making it ideal for those seeking space without isolation.
Description
Moat Barn, Abbots Bromley
A home of light, heritage and quiet presence near Blithfield Reservoir
Just a short walk from Blithfield Reservoir, Moat Barn rests within one of Abbots Bromley’s most peaceful corners. Set along a leafy lane, a long driveway leads to a small, exclusive development of converted barns surrounded by open countryside. The setting is serene and steeped in rural character, with soft views across the fields and the gentle sound of nature as its constant backdrop.
The property is approached with understated elegance. Brick and timber sit naturally within the landscape, and the overall impression is of a home that has settled beautifully into its surroundings. With around three acres of land, well-tended gardens, established trees and stables, Moat Barn offers a sense of space and seclusion while remaining within easy reach of village life. A rare and distinctive feature is the Grade II listed monument in the rear garden, protected by English Heritage, which adds both charm and historical significance to the grounds.
The home
The oak front door opens into a welcoming entrance hallway, setting the tone for the rest of the home. It is a space that feels both graceful and grounded, where natural textures and soft light immediately create a sense of calm.
From the hallway, the layout divides into distinct yet connected living areas. To one side lies the main dining kitchen, a beautifully proportioned space designed for everyday living and entertaining. The hand-painted cabinetry, central island and defined dining area make this a room that invites gathering. French doors open onto the garden, allowing natural light to spill in throughout the day.
On the opposite side of the hall is a formal dining room, ideal for evenings with family or guests. The staircase rises from this part of the house, leading to the first-floor bedrooms. Also on the ground floor, tucked quietly away from the main reception spaces, is the principal bedroom suite. It is a restful retreat with its own dressing area and en suite bathroom, offering privacy and convenience without compromising on elegance.
Walking through the kitchen brings you to the snug or sitting room, a cosy and versatile space that links the main living areas together. From here, a small staircase leads to an upper room that could serve as a study, office or playroom, making it ideal for home working or quiet hobbies.
Beyond the snug, the lounge forms the heart of the home. Its original beams, generous ceiling height and soft neutral palette create a sense of character and comfort. This is a room that feels timeless, filled with daylight during the day and warmth from the fireplace in the evening. The proportions make it equally suited to relaxed family life or more formal entertaining.
Grounds and setting
Outside, the gardens provide beauty and practicality in equal measure. Mature trees and established planting give texture and privacy, while a gently sloping lawn leads towards open countryside. The land extends to around three acres in total, providing ample room for recreation or keeping horses. The stables are well-maintained and positioned conveniently near the entrance,creating a natural separation between the formal garden and paddock area.
The historic Grade II listed monument within the garden forms an elegant focal point, its stonework softened by age and surrounded by lawn and wildflowers. It is a striking feature that connects the home to the long story of the land around it.
The driveway winds through the trees to the small courtyard of converted barns, giving a sense of arrival without pretension. The development is peaceful, with neighbouring properties that are well cared for and discreetly positioned, adding to the sense of community and security without compromising privacy.
Abbots Bromley and beyond
Abbots Bromley is a village of true character and heritage. Recorded in the Domesday Book, it is perhaps best known for the Horn Dance, a centuries-old tradition that continues each September and reflects the deep sense of continuity that defines village life.
The architecture is charmingly varied, from timber-framed cottages to elegant Georgian homes. Everyday life revolves around the Butter Cross, with its small collection of independent shops and cafés. Antlers Coffee Shop is loved for its warm welcome and delicious homemade cakes, while Cobwebs also offers a warm welcome, hot drinks and coffee. The village enjoys four excellent pubs - The Crown, The Goats Head, The Bagot Arms and The Coach and Horses - each with their own atmosphere and menu of seasonal dishes.
For daily essentials, the village provides a doctors’ surgery, and a general store, along with a highly regarded primary school and nursery. The Abbots Bromley Sports Association (ABSA) has become a central part of village life, home to cricket and football pitches and a new all-weather court for netball and five-a-side football. The tennis club, located next to the village hall, provides further facilities and a sociable community for all ages.
Moments away from the property lies the Blithfield Reservoir, one of Staffordshire’s most striking natural settings. It offers a quiet reminder of how close nature always feels here.
Despite its rural calm, Abbots Bromley remains well connected. The A38 and A50 are both within easy reach, offering swift access to Lichfield, Stafford and Uttoxeter, while Rugeley Trent Valley station provides direct rail links to London and Birmingham.
The life it offers
Moat Barn is more than a property of architectural merit; it is a home that inspires a slower, more thoughtful pace of life. It feels private yet connected, traditional yet entirely practical for modern living.
The current owners describe the things they love most as the location, the peaceful atmosphere, the far-reaching views and the genuinely kind neighbours who make this small community so special. They speak fondly of quiet mornings watching the sun rise across the fields, evenings gathered in the lounge, and weekends filled with permissive walks through the woodland at Stansley Wood, or lunch in one of the village pubs. Moat Barn represents the best of English country living. It combines space, history and craftsmanship with the understated luxury that comes from natural materials and careful design. It is a home that feels both substantial and deeply personal, ready to welcome its next custodians to enjoy all that Abbots Bromley has to offer.
Moat Barn, Abbots Bromley
A five-bedroom barn conversion with three acres of land, gardens, stables and a listed monument, set in a quiet rural position near
Blithfield Reservoir and the heart of this historic Staffordshire village.
Property details
- Tenure
- Freehold
- Council Tax Band
- E
- Date Posted
- 2026-01-29
Energy Performance Certificate
Energy Efficiency Rating
Based on UK Energy Performance Certificate standards (EU Directive 2002/91/EC)
Utilities & Restrictions
Utilities
- Electricity
- Ask Agent
- Water
- Ask Agent
- Heating
- Ask Agent
- Broadband
- Ask Agent
- Sewerage
- Ask Agent
Rights & Restrictions
- Public Rights of Way
- Ask Agent
- Private Rights of Way
- Ask Agent
- Listed Property
- Ask Agent
- Restrictions
- Ask Agent
Property Features
- Accessibility
- Ask Agent
- Parking
- Parking Available
- Garden
- Private Garden
Map Location
Market Value Analysis
Based on properties with houses in West Midlands (1+ acres).
Important notice: Information, maps and tags on this page are supplied by the advertising agent or generated automatically. LandSale has not verified them. Relying on these details is at your own risk, always carry out independent checks before committing to a purchase.
LandSale full disclaimer
Marketing information only - not formal particulars. The details on this website are provided for general guidance and do not constitute an offer or contract. Neither LandSale nor the advertising estate/land agent accepts responsibility for any inaccuracy.
1. Source of information
- Agent-supplied content: Core description, asking price, tenure, measurements, photographs and planning history are uploaded by the appointed agent, who remains solely responsible for their accuracy.
- Automated tags & categorisation: Property type, land-use class, acreage bands and similar labels may be applied by machine-learning models. They are intended as a helpful guide only and may not reflect the property's legal status or permitted use.
- Third-party & enriched data layers: Maps, boundary outlines, planning designations, soil reports, broadband coverage and other environmental or location-based insights are licensed from external suppliers. Such data are supplied “as is", may be incomplete or out of date and are subject to change without notice.
2. Verification required
Prospective purchasers must verify critical matters, including but not limited to planning permission, title boundaries, public rights of way, environmental constraints, acreage, services, access and VAT status, through their own inspections, specialist surveys, legal advisers and the selling agent before relying on the information or entering into any contract.
3. No warranty or liability
LandSale gives no warranty, express or implied, as to the accuracy, completeness or fitness for any particular purpose of the information displayed. LandSale shall not be liable for any loss, damage, cost or expense arising directly or indirectly from any use of or reliance on such information, save where liability may not be excluded by law.
4. Updates & feedback
If you believe any detail on this listing is inaccurate, please let us know. We will investigate and, where appropriate, update the listing or notify the agent.
© LandSale | Version 1.2 - January 2026
Listing agent
Bromley Cross Homes, Covering Staffordshire
Staffordshire